INDUSTRIAL / RDA ZEAL
DATOS DEL PROYECTO
Nombre proyecto / Recinto Deposito Aduanero ZEAL
Superficie m2 / 8.000m2 construidos
Año proyecto - ejecución / 2010-2011
Ubicación / ZEAL, Camino La Pólvora, Comuna de Valparaíso, Región de Valparaíso, Chile.
Escala influencia / (M) Barrio
Propietario / Sociedad ZEAL
EQUIPO
Arquitectura y PMO / Wohlenberg Arquitectura y Consultores
Arquitecto proyecto / Johann Wohlenberg Iriarte
Arquitectos Colaboradores / Catherine Manríquez, Cynthia Silva, Natalie Mollenhauer, Alejandra Garay, Tania Figueroa, Alejandra Allendes y Carolina Ipinza.
Cálculo / Claudia Rodríguez Contreras
Ingenierías de Detalles / WOH
DESCRIPCIÓN
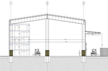
Proyecto / Se nos encarga proyectar un área RDA (Recinto Deposito de Aduana), que contemple una bodega para alojar carga de diversa índole, en transito.
Entre las funciones que allí se cumplirían, serían: almacenaje cubierto para carga General; almacenaje para contenedores descubierto; áreas especiales para Desconsolidados y Consolidados; áreas de valor agregado a materias primas tanto del país como de la zona (cono sur).
La posibilidad de esta área RDA facilita la logística de este puerto seco, en la medida que ofrece servicios que están relacionados con la internalización y aforo de carga al país, sumado a la voluntad del Puerto de Valparaíso de liberar el borde de la ciudad de Valparaíso de estas funciones
ETIQUETAS
INDUSTRIAL, BODEGA, LOGÍSTICA, OFICINAS
UBICACIÓN





